首页
关于我们
服务内容
社群资源
智业投资
客户案例
梦想学院
客户专线:
0571-87758678
公司介绍
公司团队
梦想文化
公司构架
品牌全案
整合设计
标志VI
包装宣传册
空间SI
文化墙
宣传片
新媒体
社群资源
新闻中心
新闻媒体
微信托管
DSP广告
移动大数据
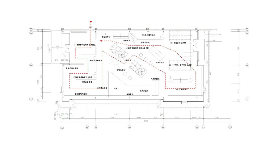
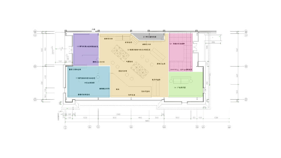
空间SI设计及施工
案例展示:
薄荷生态博物馆
展示